regina corbin

wy'east plaza

affordable housing

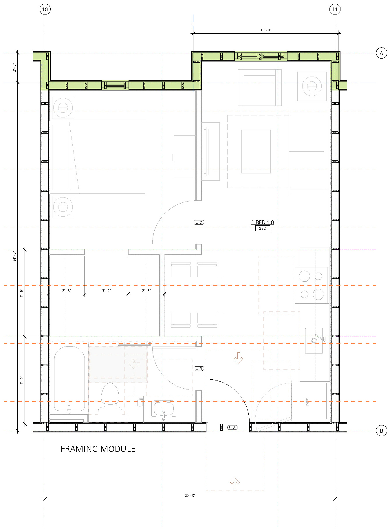
unit design down to each stud and sheet of plywood

zoning requirements of varying facade depths were at odds with the cost containment goals of the project

WY'EAST PLAZA


ROLE

Project Architect

Design


PROGRAMS USED

Revit 2018

SketchUp

Enscape


InDesign

Illustrator

Photoshop


Newforma

BlueBeam


WY'EAST PLAZA is a place for second chances and life transitions. With 175 units, this affordable housing project provides safe, dignified housing while also being an exercise of efficiency, constraint, and collaboration.


The client saw this as a prototype for affordable housing, looking to make each residential unit a standard module that could be used throughout future projects. Cost containment strategies challenged our architects and interior designers to develop new solutions that would provide housing for more families, per dollar spent. The entire architectural, engineering, and construction team operated under lean design principles, collaborating early and often about things like how to configure window alignments in order to maximize plywood placement and reduce framing cuts.


Ultimately, we were able to deliver the building at $111k / unit, which was below cost of any other Portland-area affordable housing project built at the time.


Completion: November 2020

Type V construction

99,100 square feet

4 stories

175 units – studios, one-beds, two-beds

entry concept sketch

entry and cladding embellishment

superlap design

standard window plan detail

courtyard side superlap

ground floor

entry and ‘superlap’

superlap design process

courtyard

tatami mat inspiration

typical upper floor

entry wall section

standard window bay

courtyard